Hiện nay nhu cầu xây dựng nhà vườn để tận hưởng một cuộc sống gần gũi với thiên nhiên ngày một tăng cao. Các bản thiết kế nhà vườn 4 phòng ngủ đang là lựa chọn số Một của nhiều gia đình đông thành viên.
Nếu bạn đang sở hữu một khoảng đất rộng, đang tìm kiếm một ý tưởng thiết kế nhà vườn đẹp thì bài viết dưới đây sẽ cho bạn câu trả lời. Chúng tôi đã tổng hợp 13 mẫu thiết kế nhà vườn 4 phòng ngủ đẹp nhất được gợi ý từ các kiến trúc sư lành nghề. Hãy cùng chúng tôi theo dõi chi tiết dưới đây nhé!
Trước đây những tòa nhà cao tầng, nhà ống đều tăm tắp trên phố là một biểu tượng của sự thành công. Thì ngược lại, bây giờ những căn nhà vườn với khoảng sân rộng rãi, bố trí không gian trên 1 tầng mới chính là xu hướng. Bởi con người ngày càng hướng tới cuộc sống xanh, tìm về với tự nhiên trong lành.
Đó cũng chính là lý do các bản thiết kế nhà vườn 4 phòng ngủ đang được nhiều chủ đầu tư tìm kiếm. Garden Villas sẽ chia sẻ cho bạn 13 mẫu thiết kế nhà vườn 4 phòng ngủ đẹp - bố trí khoa học dưới đây:
Và tùy theo từng mẫu thiết kế khác nhau ta sẽ thấy được vẻ đẹp của sự sáng tạo và kết hợp tài tình giữa các đường nét, hình khối, góc cạnh.
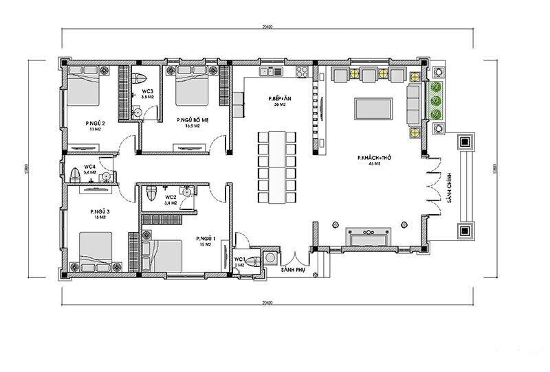
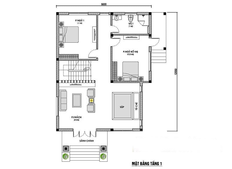
Bản thiết kế nhà vườn 4 phòng ngủ phong cách hiện đại thường được sắp xếp với: 1 phòng khách, 1 phòng bếp + phòng ăn, 4 phòng ngủ, gara ô tô, khu sân bbq… Tùy theo nhu cầu sử dụng mà bạn có thể sắp đặt 2 đến 4 nhà vệ sinh trong nhà.
Mẫu nhà vườn 4 phòng ngủ này được xây 1 tầng nên rất phù hợp cho gia đình có đông thành viên. Đặc biệt là các thành viên lớn tuổi như người già và thành viên nhí như trẻ em. Không bố trí cầu thang, không phân tầng sẽ giúp cho sinh hoạt của các thành viên dễ dàng và an toàn hơn.
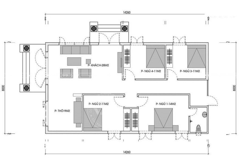
Phong cách tân cổ điển rất hay được sử dụng cho các ngôi nhà vườn có diện tích lớn. Bởi vì phong cách này thiên về các đường nét trang trí theo phong cách Châu Âu vậy nên cần một khoảng không rộng để thực hiện được điều đó.
Những gia chủ có địa vị trong xã hội hay yêu thích sự lộng lẫy, xa hoa của các tòa lâu đài xưa nhưng không muốn một không gian sống quá rườm rà, kiểu cách thì thường lựa chọn phong cách Tân cổ điển.
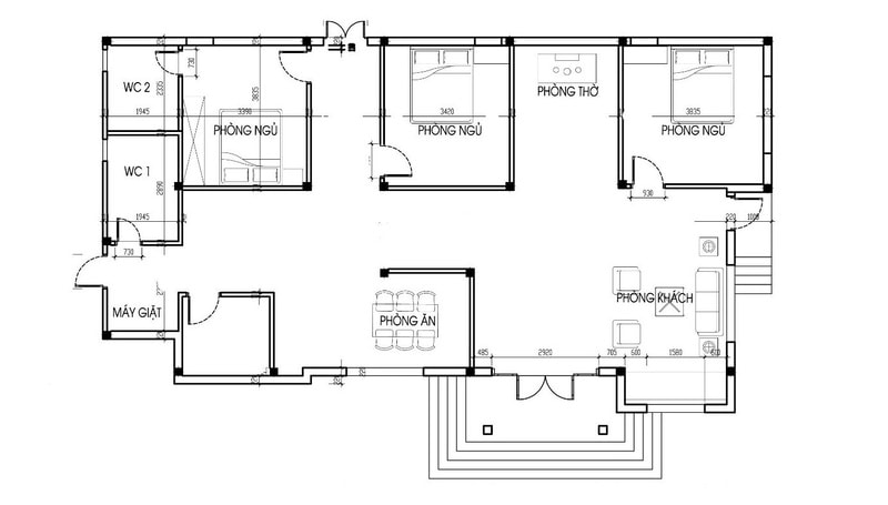
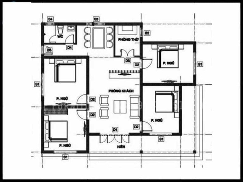
Bản thiết kế nhà vườn 4 phòng ngủ phong cách Tân cổ điển được tạo nên từ nguyên tắc đối xứng. Các không gian trong nhà đều có sự đối xứng hoàn hảo. Ở đây ta có thể thấy bản vẽ mang tới 1 không gian với 4 phòng ngủ, 1 phòng khách, 1 phòng thờ, 1 phòng bếp + Nhà ăn, 3 nhà vệ sinh.
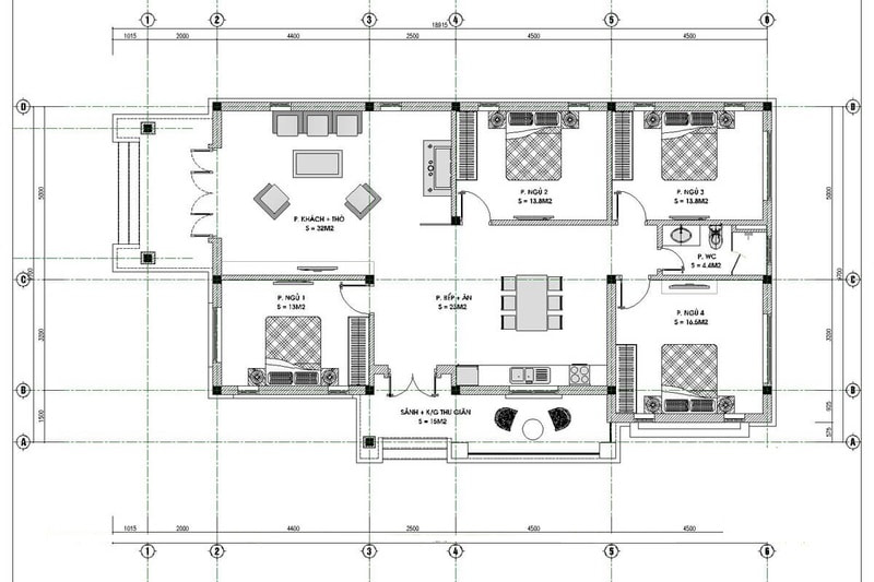
Với những người trẻ tuổi thường thích sự phá cách trong không gian sống. Vậy nên các bản thiết kế nhà vườn 4 phòng ngủ được lựa chọn thường có sự cách điệu trong thiết kế và sáng tạo trong bố trí không gian.
Các mẫu thiết kế nhà vườn này có thể có 2 tầng hoặc 1 tầng trệt. Trong đó nổi bật là không gian sinh hoạt chung được thiết kế rộng rãi để cả gia đình gắn kết tình cảm. Bên cạnh đó, không gian sinh hoạt riêng tư như các phòng ngủ cũng được thiết kế như một căn nhà thu nhỏ với đầy đủ tiện nghi.
Điểm ấn tượng trong mẫu thiết kế nhà vườn 1 tầng rưỡi hoặc 2 tầng sẽ có thêm không gian ban công. Điều này giúp bạn thỏa sức tận hưởng không khí trong lành từ vườn cây xung quanh nhà. Không chỉ vậy, không gian trong vườn cũng được quan tâm bố trí khá nhiều. Các loại cây được sắp xếp khoa học để mang lại vẻ đẹp tổng thể gắn kết cho ngôi nhà.
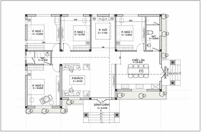
“Nhà chữ L” là mô hình nhà ở được xây dựng gồm 2 khối nhà gắn kết với nhau thành góc vuông hoặc góc nhọn. Mô hình nhà ở này đang được ứng dụng nhiều trong việc thiết kế nhà vườn.
Hơn nữa, các căn nhà vườn được xây dựng hình chữ L cũng mang lại một vẻ đẹp hiện đại, trải nghiệm gắn kết với thiên nhiên thoải mái hơn.
Với bản thiết kế nhà vườn 4 phòng ngủ hình chữ L bạn có thể tạo nên những căn phòng với 3 mặt đều có cửa sổ. Như vậy sẽ tạo nên một không gian sống thoáng đãng, tươi mát hơn.
Trong việc xây dựng nhà cửa, ngoài yếu tố thẩm mỹ thì yếu tố tiện lợi vẫn được đặt lên hàng đầu. Một ngôi nhà dù đẹp đến đâu mà đáp ứng được nhu cầu sinh hoạt của các thành viên thì cũng đều mang lại sự bất tiện.
Bạn nên tham khảo ý kiến của các thành viên trong gia đình về nhu cầu sử dụng, thói quen sinh hoạt để tạo nên một bản thiết kế nhà vườn 4 phòng ngủ phù hợp nhất.
Các căn biệt thự nhà vườn 4 phòng ngủ tiện lợi thường có 4 phòng ngủ chính với 4 phòng vệ sinh đi kèm. Bên cạnh đó không thể thiếu không gian sinh hoạt chung như không gian giải trí, làm việc, nhà bếp, nhà ăn… Bạn cũng có thể sắp đặt thêm bể bơi, phòng massage trong nhà để tăng sự thoải mái trong sinh hoạt.
Diện tích 300m2 là một diện tích không nhỏ, phù hợp để xây dựng một căn nhà vườn với không gian nhà ở phù hợp cho sinh hoạt. Bạn có thể sắp xếp 4 phòng ngủ xen kẽ nhau hoặc nằm rải rác gồm 2 phòng đơn, 2 phòng đôi.
Ngoài ra, lựa chọn thiết kế 4 phòng ngủ nằm đối xứng nhau cũng được nhiều gia chủ lựa chọn. Như vậy sẽ tăng được tính thẩm mỹ cho nội thất, khiến căn nhà có tổng thể bố cục hợp lý hơn.
Xây dựng một ngôi nhà là một điều không hề đơn giản. Bạn sẽ cần rất nhiều thời gian và công sức để có thể tạo nên một không gian sống thoải mái, tiện lợi với thiết kế hợp ý.
Đặc biệt là với một căn nhà có nhiều người cùng chung sống thì việc cân đối giữa ý kiến của các thành viên trong gia đình và ý kiến của gia chủ lại càng trở nên quan trọng hơn. Hẳn là bạn sẽ chẳng muốn xây dựng một căn nhà sau đó lại tốn thời gian sửa chữa cho phù hợp với thói quen sinh hoạt.

Dưới đây là một vài chú ý quan trọng từ các kiến trúc sư giúp bạn dễ dàng sở hữu một căn nhà trong mơ hợp ý hơn:
0984.639.995