Thiết kế nhà chòi trong sân vườn mang lại cho không gian sống rất nhiều ưu điểm. Không chỉ là vật trang trí cho khu vườn thêm sinh động mà nó còn có thể trở thành nơi gắn kết các thành viên trong giờ phút nghỉ ngơi.
Vậy làm thế nào để thiết kế được một khoảng sân đẹp với nhà chòi ấn tượng? Hãy cùng Garden Villas theo dõi bài viết dưới đây để biết câu trả lời nhé!
-https___gardenvillas_vn_.jpg)
Xây dựng một nhà chòi nhỏ ở giữa sân vườn đã trở thành phương án được các chủ đầu tư lựa chọn nhiều nhất. Đặc biệt là với những ngôi nhà được xây dựng theo phong cách nhà vườn hoặc biệt thự nhà vườn.
1.1. Tìm hiểu về nhà chòi - Vật trang trí tuyệt vời cho khoảng sân nhà bạn
Nhà chòi là một công trình kiến trúc thuộc phạm vi thiết kế ngoại thất hay thiết kế cảnh quan của ngôi nhà. Ta thường hay nhắc tới định nghĩa về nhà chòi như sau:
-https___gardenvillas_vn_.jpg)
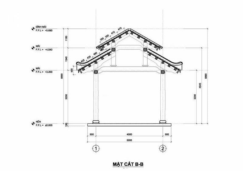
Cấu tạo của nhà chòi rất đơn giản. Hầu như nó chỉ gồm 2 phần là cột trụ và mái. Nhà chòi truyền thống thường không có tường bao với tất cả các mặt đều hướng ra tự nhiên. Công năng chính của nhà chòi là dùng làm nơi nghỉ ngơi, tránh nắng, thư giãn.
Khi thiết kế nhà chòi trong sân vườn, người ta thường chia ra thành nhiều loại để dễ phân biệt. Đó là:
>> Xem thêm:THIẾT KẾ NHÀ VƯỜN - XU HƯỚNG HOT 2023 VÀ KINH NGHIỆM LÀM NHÀ VƯỜN ĐẸP
Các kiến trúc sư sẽ lựa chọn mẫu nhà chòi phù hợp với ngôi nhà của bạn sau khi tham khảo các yếu tố như: Phong cách thiết kế nhà, sở thích của gia chủ, tài nguyên hiện có, diện tích sử dụng…
Tuy rằng nhà chòi hiện đang dẫn đầu trong TOP các vật trang trí được sử dụng nhiều nhất trong vườn nhưng vẫn có nhiều chủ đầu tư còn đang băn khoăn có nên xây dựng nhà chòi hay không. Bởi vì để sở hữu một “Vọng lâu” có thiết kế đẹp, hoàn hảo về thẩm mỹ và công năng thì cần đội ngũ kiến trúc sư chuyên nghiệp với nhiều năm kinh nghiệm.
-https___gardenvillas_vn_.jpg)
Nếu bạn vẫn đang băn khoăn có nên thuê dịch vụ thiết kế nhà chòi trong sân vườn hay không thì dưới đây sẽ là một số ưu, nhược điểm về nhà chòi trong sân vườn:
Ưu điểm:
-https___gardenvillas_vn_.jpg)
Nhược điểm:
>> Xem thêm: 5 TIÊU CHUẨN THIẾT KẾ NHÀ VƯỜN CỐT LÕI MANG LẠI NGÔI NHÀ ĐẸP NHƯ MƠ
Nhà chòi đã xuất hiện từ rất lâu trước đây. Có thể kể tới từ thời các triều đại vua chúa đã quen thuộc với hình ảnh một căn vọng lâu giữa vườn hoa để thưởng hoa, ngắm trăng. Trải qua nhiều năm phát triển, hiện nay các căn nhà chòi đã được biến hoa đa dạng phong cách chứ không đơn điệu như ngày xưa.
Hãy cùng chúng tôi tìm hiểu về 4 PHONG CÁCH THIẾT KẾ NHÀ CHÒI TRONG SÂN VƯỜN được ưa chuộng nhất hiện nay nhé:
Nhà chòi thủy tạ
“Thủy tạ” là một từ cổ dùng để chỉ một căn nhà nhỏ, được xây bên cạnh hồ nước hoặc nằm trên mặt nước. Các căn nhà chòi thủy tạ phù hợp cho ngôi nhà có thiết kế liên quan tới nước như hồ cá Koi, hồ nước…
-https___gardenvillas_vn_.jpg)
-https___gardenvillas_vn_.jpg)
Nhà chòi lục giác
Kết cấu nhà chòi lục giác vô cùng đơn giản, chỉ bao gồm 6 cây cột trụ và 6 vì kèo. Mẫu thiết kế này khiến chúng ta liên tưởng đến các căn vọng lâu trong cung điện hoàng gia.
_1-https___gardenvillas_vn_.jpg)
-https___gardenvillas_vn_(1).jpg)
Nhà chòi Nhật Bản
Nhà chòi Nhật Bản ưa chuộng phong cách tối giản, đơn giản. Là một đất nước có truyền thống yêu mến thiên nhiên nên các căn nhà chòi theo phong cách Nhật đều rất đơn giản, không cầu kỳ quá nhiều yếu tố trang trí. Thay vào đó nó đề cao tính thoải mái và gần gũi với tự nhiên.
-https___gardenvillas_vn_.jpg)
-https___gardenvillas_vn_.jpg)
>> Xem thêm: 85+ Ý TƯỞNG THIẾT KẾ HOMESTAY NHÀ VƯỜN HÚT KHÁCH KHÔNG THỂ RỜI MẮT
Nhà chòi bằng sắt
-https___gardenvillas_vn_.jpg)
Chòi nghỉ mang tới cho không gian sống của gia đình rất nhiều ưu điểm. Nó không chỉ là một vật trang trí cho khu vườn thêm sống động mà còn thể hiện sự sang trọng, đẳng cấp của chủ nhân.
Cùng Garden Villas tham khảo 18 mẫu thiết kế nhà chòi trong biệt thự nhà vườn đẹp nhất 2023 nhé:
-https___gardenvillas_vn_.jpg)
-https___gardenvillas_vn_.jpg)
-https___gardenvillas_vn_.jpg)
-https___gardenvillas_vn_.jpg)
>> Xem thêm: 37+ MẪU THIẾT KẾ BIỆT THỰ NHÀ VƯỜN TẠI ĐÀ NẴNG ĐẸP - XU HƯỚNG XÂY NHÀ VƯỜN
-https___gardenvillas_vn_.jpg)
-https___gardenvillas_vn_.jpg)
-https___gardenvillas_vn_.jpg)
>> Xem thêm: TOP 17+ Ý TƯỞNG THIẾT KẾ KHUÔN VIÊN NHÀ VƯỜN THU HÚT MỌI ÁNH NHÌN
-https___gardenvillas_vn_.jpg)
-https___gardenvillas_vn_.jpg)
-https___gardenvillas_vn_.jpg)
>> Xem thêm: 21+ MẪU THIẾT KẾ CẢNH QUAN NHÀ VƯỜN NỔI BẬT KHÔNG THỂ RỜI MẮT 2023
Trên đây là toàn bộ thông tin về thiết kế nhà chòi nhà ở. Nếu bạn cần thêm bất cứ thông tin gì hoặc cần tư vấn chi tiết hơn về dịch vụ Thiết kế nhà chòi trong sân vườn hãy liên lạc tới Garden Villas theo số HOTLINE trên Website.
Chúng tôi luôn sẵn sàng phục vụ quý khách!
0984.639.995