Thiết kế nhà vườn 3 phòng ngủ là phương án xây dựng không gian sống vừa tiết kiệm chi phí vừa phù hợp về công năng sử dụng. Tuy nhiên, khi xây nhà 3 phòng ngủ cần có sự phân chia không gian cho phù hợp để tránh tình trạng diện tích không đều, không đáp ứng yêu cầu sinh hoạt.
Hiểu được lo lắng của bạn, Garden Villas đã mang tới TOP 2 bản vẽ thiết kế nhà vườn với 3 phòng ngủ hợp lý và đẹp nhất hiện nay. Các mẫu bản vẽ chi tiết này sẽ giúp bạn hiểu thêm về cách bày trí không gian cũng như có ý tưởng cho căn nhà của mình.
Phong cách hiện đại đang là lựa chọn tối ưu cho các gia đình khi thiết kế nhà vườn. Với ưu điểm là đơn giản, dễ dàng thực hiện và phù hợp với mọi diện tích đất, phong cách hiện đại sẽ giúp bạn sở hữu một căn nhà hoàn hảo.
Những ngôi nhà vườn phong cách hiện đại thường không tập trung vào các yếu tố đường nét, hoa văn trang trí. Ngược lại, nó thường sử dụng các tone màu đơn sắc cho ngôi nhà thêm nổi bật. Và các yếu tố trang trí ở phong cách này cũng được tối giản, chủ yếu tập trung vào các hình khối sắp xếp sao cho ấn tượng và độc đáo.
Nếu bạn sở hữu một diện tích đất rộng từ 100m2 trở lên thì phương án xây nhà vườn 1 tầng khá là phù hợp. Nó dành cho các gia đình có ít thành viên, chỉ từ 3 đến 5 thành viên. Các mẫu nhà vườn 1 tầng thường có 3 phòng ngủ, 1 phòng bếp, 1 phòng khách, phòng thờ...
Với 1 tầng thì bạn sẽ có cuộc sống gần gũi với thiên nhiên hơn khi chỉ cần mở cửa là bước ra vườn. Không gian này đặc biệt phù hợp cho những ai yêu thích tự nhiên, thích cuộc sống xanh, tận hưởng không khí trong lành từ cây cỏ.
-https___gardenvillas_vn_.jpg)
Mẫu nhà hiện đại thường không tập trung vào các hoa văn cầu kỳ. Ta có thể thấy ở phong cách này các kiến trúc sư chủ yếu tập trung sử dụng các màu đơn giản trắng, kem hoặc màu tối. Cùng với đó là việc kết hợp các dải màu đối lập giúp mặt tiền ngôi nhà thêm nổi bật hơn như trắng và đen, xanh...
-https___gardenvillas_vn_.jpg)
Kết hợp cùng không gian sân vườn sẽ khiến cả ngôi nhà thêm tươi mát. Mặt tiền của các mẫu thiết kế nhà vườn 3 phòng ngủ 1 tầng sẽ sử dụng các vật liệu hiện đại như kính để tăng thêm sự độc đáo, trẻ trung cho chủ nhân ngôi nhà. Khu vực không gian sân vườn ở mặt tiền nhà cũng được thiết kế khá thoáng, mang lại cảm giác rộng rãi, thoải mái.
-https___gardenvillas_vn_.jpg)
-https___gardenvillas_vn_.jpg)
Với các thiết kế nội thất phong cách hiện đại, bạn có thể thấy nó không quá cầu kỳ, phức tạp. Phong cách hiện đại khá thoải mái trong việc bày trí. Các yếu tố trang trí đều đặt mạnh yếu tố sáng tạo, độc đáo. Do vậy mà các kiến trúc sư sẽ luôn tập trung sử dụng các chất liệu khác nhau như gỗ, nhôm, sắt... Nhờ vậy không gian thêm phần trẻ trung, phá cách
-https___gardenvillas_vn_.jpg)
Các căn phòng trong phong cách này thường khá đơn giản, không có quá nhiều các đồ trang trí nhiều màu sắc.
-https___gardenvillas_vn_.jpg)
-https___gardenvillas_vn_.jpg)
-https___gardenvillas_vn_.jpg)
Khu vực cảnh quan là phần không thể thiếu của ngôi nhà. Tùy theo diện tích đất, đặc điểm ngôi nhà, phong cách cá nhân mà ta sẽ có những mẫu thiết kế vườn khác nhau. Ở trong thiết kế nhà vườn 3 phòng ngủ 1 tầng ta có mẫu vườn đơn giản, thanh lịch.
-https___gardenvillas_vn_.jpg)
Không lựa chọn các loại cây xanh quá khổ hay các loại hoa rực rỡ, khu vườn lần này mang lại một màu xanh mát mắt, nhẹ nhàng với những khóm cây thấp. Thiết kế này giúp làm tăng ánh sáng cho ngôi nhà, khiến ngôi nhà không bị che khuất bởi vườn cây.
Thêm vào đó, khu vườn này còn được sắp đặt có ý đồ về tính thẩm mỹ. Các khóm hoa tròn, thẳng cùng màu đỏ xanh đan xen đem lại cảm giác tươi mới, không bị nhàm chán cho khu vườn.
-https___gardenvillas_vn_.jpg)
>> Xem thêm: TOP 55+ MẪU THIẾT KẾ NHÀ VƯỜN 500M2 ĐẸP MÊ MẨN KHÔNG THỂ BỎ QUA
-https___gardenvillas_vn_.jpg)
Phong cách thiết kế nhà có sân vườn ở giữa là một xu hướng mới xuất hiện gần đây. Nó mang tới một lối kiến trúc mới lạ, vô cùng độc đáo, ấn tượng cho ngôi nhà của bạn. Bên cạnh đó, việc đặt khu vườn vào giữa ngôi nhà sẽ giúp có thêm không gian sinh hoạt, phù hợp với những gia đình nhiều người.
.png)
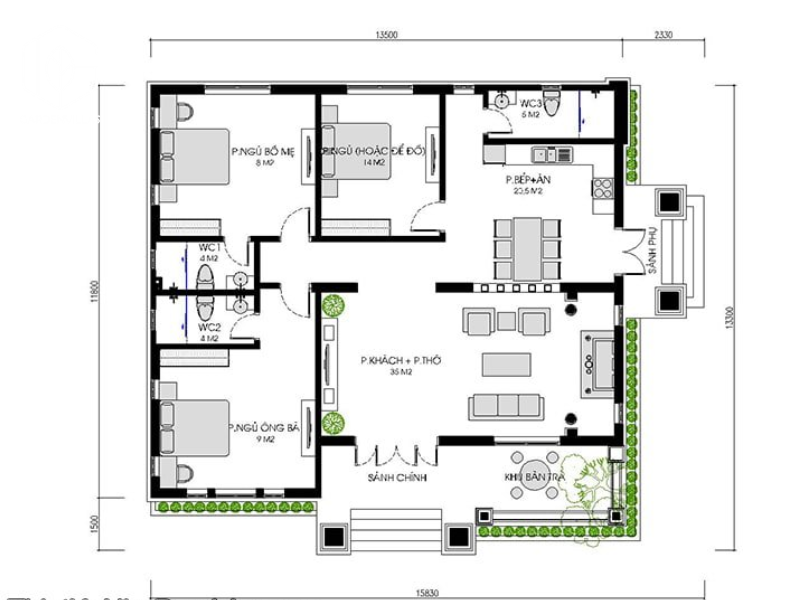
Bản thiết kế này do các kiến trúc sư của Garden Villas thực hiện đáp ứng nhu cầu của gia chủ. Đó là phải có 3 phòng ngủ cho 5 thành viên. Trong đó, diện tích ngôi nhà gần 200m2 được thiết kế hình vuông để tăng không gian sống. Trong bản thiết kế này, ngoài 3 phòng ngủ, ta còn có thêm không gian phòng khách, phòng thờ, phòng bếp, phòng ăn.
Ngoài ra, các kiến trúc sư Garden Villas còn thiết kế không gian bàn trà uống nước theo phong cách Nhật Bản ở ngoài vườn đáp ứng việc thư giãn nghỉ ngơi của gia đình.
>> Xem thêm: 45+ MẪU THIẾT KẾ NHÀ VƯỜN 1 TẦNG ĐẸP KHÔNG THỂ RỜI MẮT
Đây được đánh giá là bản vẽ thiết kế nhà vườn 3 phòng ngủ đáp ứng hoàn hảo các công năng sử dụng của cả gia đình. Nó đem lại cho bạn một cuộc sống tiện nghi, thoải mái. Bên cạnh đó các yếu tố thẩm mỹ cũng được đề cao khi luôn chú trọng các yếu tố trang trí cho không gian thêm nổi bật, không bị nhàm chán.
Với thiết kế 3 phòng ngủ, kiến trúc sư vẫn lựa chọn lối thiết kế nhà 1 tầng cho gia chủ. Trên mảnh đất có diện tích hơn 200m2 thì một ngôi nhà 1 tầng sẽ giúp thể hiện được sự đẳng cấp của gia chủ hơn. Với phối cảnh mặt tiền nhà ta có thể thấy ngôi nhà được xây theo lối kiến trúc truyền thống. Đó là phong cách nhà vườn cấp 3 với mái thái đặc trưng của Việt Nam.
Nhà mái thái đã bắt đầu xuất hiện tại Việt Nam khoảng 10 năm trước đây và được ưa chuộng tại thành phố và nông thôn. Phong cách xây dựng nhà ở này có ưu điểm nổi bật là dễ xây dựng, đơn giản nên chi phí thiết kế nhà vườn và chi phí thi công khá rẻ. Thêm vào đó, thời gian thi công cũng nhanh hơn các phương án kiến trúc khác phức tạp hơn.
Căn nhà được thiết kế với phần mái thái nổi bật được xây xếp tầng mang tới cho ngôi nhà có chiều cao hơn. Bên cạnh đó mái thái cũng có tác dụng chống nắng, chống nóng khá tốt. Kết hợp với vườn cây tươi mát xung quanh sẽ giúp gia chủ có không gian sống thoải mái, mát mẻ hơn vào ngày hè oi bức.
Trong thiết kế nhà lần này, kiến trúc sư đã thể hiện ý đồ muốn mở rộng không gian tối đa. Tất cả các không gian trong nhà đều hướng ra vườn và có không gian mở để kết nối với nhau dễ dàng. Việc thiết kế không gian mở giúp căn nhà đón gió tốt hơn, thông thoáng hơn vào mùa hè. Thiết kế cửa kính giúp mùa đông dù có đóng kín cửa vẫn có thể nhìn ngắm không gian ngoài vườn, tận hưởng vẻ đẹp của cây cối reo vui.
>> Xem thêm: BẬT MÍ 20 MẪU THIẾT KẾ NHÀ VƯỜN ĐẸP GIÁ RẺ BẤT NGỜ CHỈ TỪ 450 TRIỆU
Trong thiết kế nhà vườn yếu tố cảnh quan luôn đi liền với yếu tố nội thất. Là một trong những yếu tố quan trọng nhất của nhà vườn, ở thiết kế lần này các kiến trúc sư đã tạo nên một khu vườn hoàn hảo đúng ý chủ đầu tư. Đó là một khu vườn rộng rãi, nhiều cây xanh nhưng không bị gò bó, chật chội.
Cùng với đó là việc kết hợp đầy đủ các yếu tố kim, mộc, thủy, hỏa, thổ trong không gian sân vườn để tăng thêm tính hài hòa trong phong thủy.
Hòn non bộ với các tảng đá trang trí ở một góc phòng cho không gian thêm phần sinh động và không bị nhàm chán bởi cây xanh. Các loại cây được trồng xem kẽ với kích thước phù hợp, không khiến ngôi nhà bị lọt thỏm giữa rừng cây mà vẫn đem lại được không khí trong lành cho không gian sống.
-https___gardenvillas_vn_.jpg)
Việc kết hợp một số loại cây cao và các chậu cây nhỏ ở góc vườn theo xếp tầng bậc thang là một ý đồ của kiến trúc sư. Nó thể hiện không gian mở, sáng tạo và độc đáo hơn với thảm thực vật đa dạng, cho mắt nhìn được tự do. Điểm nổi bật của khu vườn là thảm cỏ xanh ngát cho không gian luôn tràn ngập màu xanh rực rỡ, đối lập với tone trắng xám đơn giản của ngôi nhà.
>> Xem thêm: TOP 7 MẪU THIẾT KẾ NHÀ VƯỜN CÓ AO CÁ BÌNH DỊ, AN YÊN
Khi thiết kế nhà vườn 3 phòng ngủ thì ngoài các yếu tố về cây xanh thì các yếu tố về sân vườn như đèn chiếu sáng, hệ thống đường đi... là không thể bỏ qua. Nó góp phần tạo nên một không gian sống tiện nghi hơn.
Hệ thống đèn điện cần được bố trí hợp lý mang tới ánh sáng cho toàn bộ khu vườn vào buổi tối. Tránh việc nhiều cây quá khiến cho ngôi nhà bị che khuất, mất đi nguồn sáng ảnh hưởng tới sinh hoạt thường ngày.
Thiết kế nội thất nhà vườn 3 phòng ngủ rất quan trọng về sự đồng bộ. Mỗi phòng với nhau đều cần có sự đồng bộ trong thiết kế, bố trí, sắp đặt để tránh việc rời rạc, không tập trung.
-https___gardenvillas_vn_.jpg)
-https___gardenvillas_vn_.jpg)
>> Xem thêm: TRỌN BỘ 37+ Ý TƯỞNG THIẾT KẾ NHÀ VƯỜN 2 MẶT TIỀN ĐẲNG CẤP, NỔI BẬT
-https___gardenvillas_vn_.jpg)
>> Xem thêm: TOP 10 MẪU THIẾT KẾ NHÀ VƯỜN 3000M2 SỞ HỮU VẺ ĐẸP NỔI BẬT, CHOÁNG NGỢP
0984.639.995